BILZEN
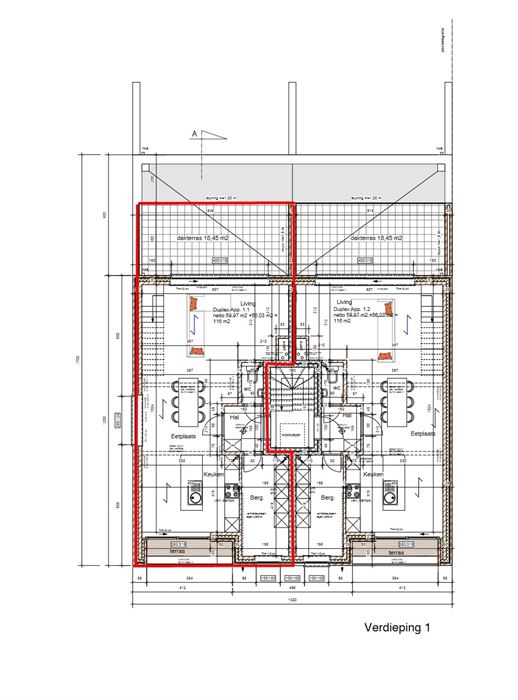
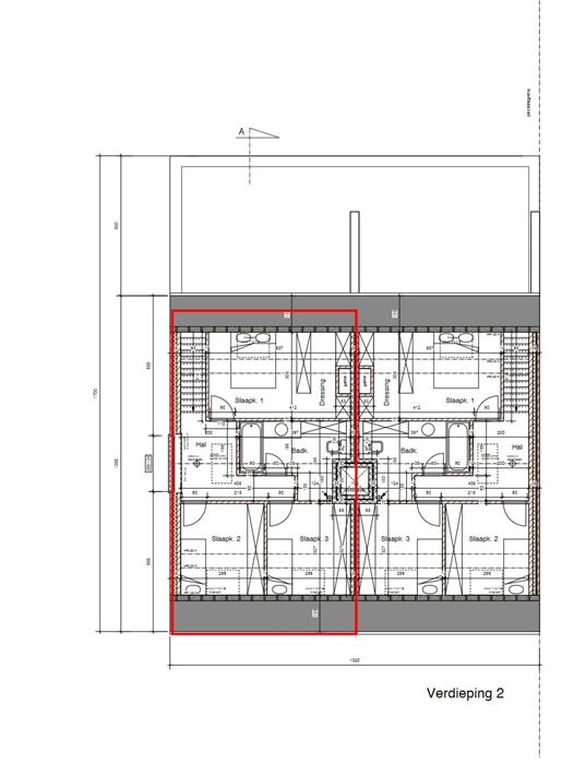
Op wandelafstand van het centrum van Bilzen verhuren wij dit duplex appartement bestaande uit een inkomhal, toilet, bureel/slaapkamer, living met open, volledig ingerichte keuken, 2 slaapkamers en een badkamer met inloopdouche. Verder is er ook een ruim terras en een zolder.
Het appartement wordt verwarmd met een condenserende CV ketel met vloerverwarming.
Voor meer info: bel 0499579139





















.png?format=webp&width=1920&height=auto)