BILZEN
Quasi energie neutrale nieuwbouwwoning te spurk 40A met een EPC waarde nog te bepalen (target onder 10).
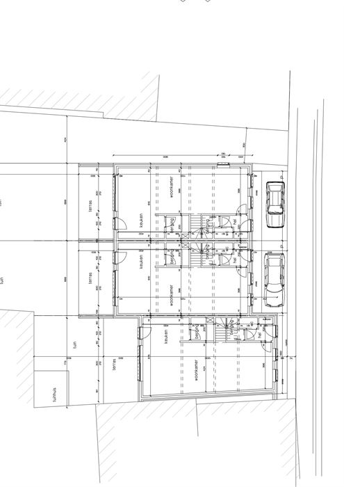
Gelijkvloers:
inkomhal, toilet, berging, grote woonkamer met veel lichtinval en open volledig ingerichte keuken voorzien van alle toestellen en een keukeneiland van 180cm x120cm, keukenberging.
Grote PVC ramen met hoogwaardig 3-dubbel glas met veel lichtinval. Er is ook een deur voorzien om naar het terras en de tuin te gaan.
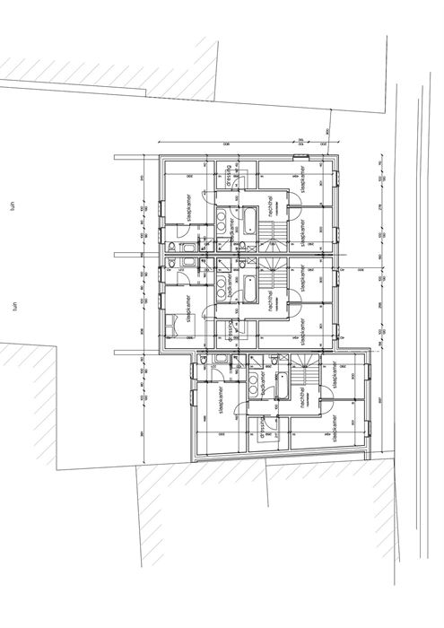
Eerste verdiep:
3 ruime slaapkamers waarvan één suite met eigen badkamer en dressing.
Volledig ingerichte badkamer met bad, douche, lavabo en toilet.
Vaste trap naar de zolder die nog eens ingedeeld is in 3 drie ruimten.
Garage van 7m x 3,5m, zodat u ruimte genoeg heeft voor de auto, fietsen en extra opbergruimte
Automatische ventilatie van Renson, zonnepanelen van meer dan 5 kw,
Verwarming met een zeer energiezuinige warmtepomp, dus geen aardgas nodig.
Ramen met hoogwaardig triplexglas voor een goede warmte- en geluidsisolatie.
WC's en buitenkraan aangesloten op een regenwater put
Voorziening voor elektrisch laden van auto's
Extra parkeerplaats.
Geschatte oplevering zomer 2023.
Neem contact op voor meer informatie en bezichtiging 0499579139











































.png?format=webp&width=1920&height=auto)
