VROENHOVEN:
Op de grens met maastricht verhuren wij deze woning in half open bebouwing. Deze charmante energiezuinige woning gebouwd in 2017 is als volgt ingedeeld:
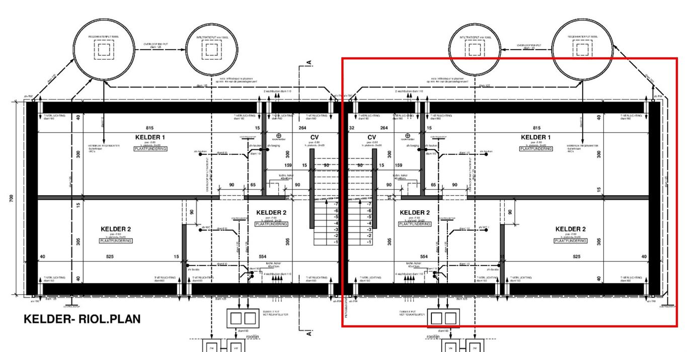
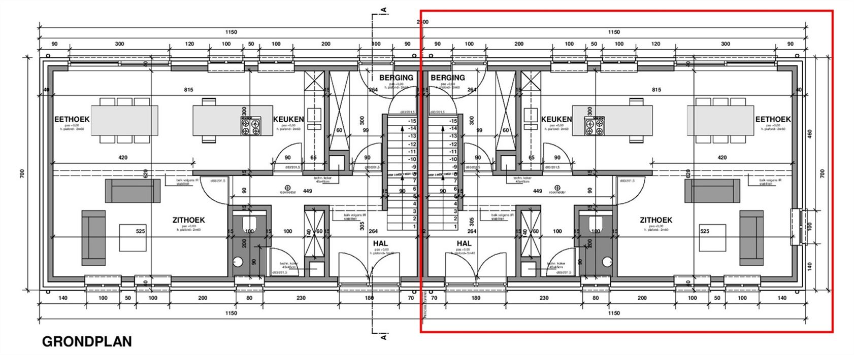
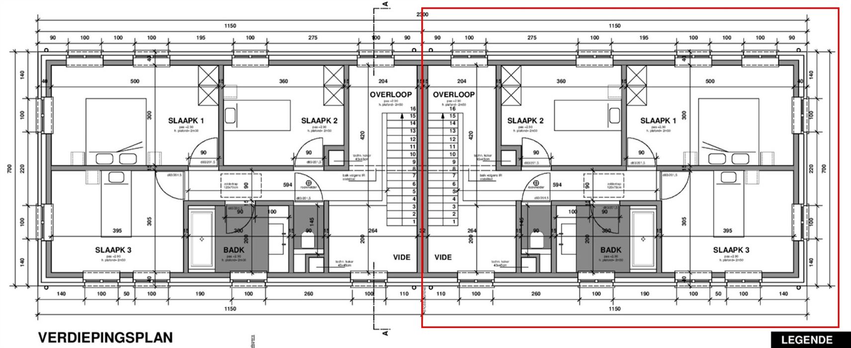
Er is een ruime kelder. De inkomhal met vide geeft je dadelijk een ruimtegevoel. Op het gelijkvloers bevinden zich de gezellige woonkamer met open, volledig ingerichte keuken. Er is veel lichtinval door de grote ramen aan de achterzijde. De volledig afgewerkte en ingerichte keuken is voorzien van alle comfort. Via de keuken en de eetkamer kan je gemakkelijk naar het achterliggend terras en de tuin. Verder hebben we een gastentoilet en een vestiaire. Via de wasplaats/berging kan je ook naar de tuin en naar de kelder. Op het eerste verdiep hebben we dan 3 ruime slaapkamers, voorzien van internet- en TVaansluiting. Vervolgens is er de badkamer met dubbele lavabo en inloopdouche. Het hele huis is voorzien van vloerverwarming. Op de zolder staat een condenserende gaswandketel en het ventilatiesysteem type D. Deze woning is voorzien van zonnepanelen en een regenwaterreservoir dat aangesloten is op de toiletten en de buitenkraan.
Buiten is er een carport.
Deze nieuwbouw woning is zeker de moeite waard en is perfect afgewerkt.
Voor meer info of een afspraak, aarzel niet contact op te nemen per mail. Gelieve steeds uw email en gsmnummer te vermelden.































.png?format=webp&width=1920&height=auto)
